酷装企【产品演示站】
为装企提供营销动力!
“屋子太小但需求太多,刚结婚,老婆是个动手能力超强的人,可面对只有46㎡的房子,也是一筹莫展。这个房子还是上世纪90年代的砖混结构房,结构上的改造,会有很多局限。”——新婚夫妻屋主C仔
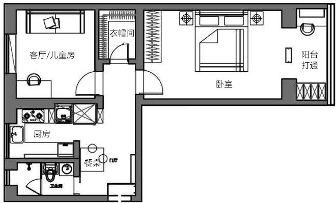
1、房屋基本信息

户型:刀字户型
面积:46㎡
改造预算:10万元
户型缺陷
1.上世纪90年代经典的“偏单”结构,进门没有客厅,只是一个走道;
2.厨卫面积很小,仅仅可以满足最基本的功能;
3.两个卧室相对大,整体空间结构分布非常不平衡。
屋主需求
1.卫生间虽然很小,但还是想要设立一个淋浴间;
2.由于女主热爱烹饪,因此需要烤箱,蒸箱,大冰箱和尽可能多的收纳空间;
3.家里杂物和书非常多,如何将它们妥善安置也是一个改造重点。
2、改造大变身

改造后的案例可以说是麻雀虽小五脏俱全:
1.由于客户要求的冰箱尺寸较大,厨房实在难以放开,所以将厚墙敲薄一部分形成一个内凹结构,墙体加固后可以将冰箱内嵌进去。
2.原本的次卧是个刀把结构,改造后被分隔开,作为储物间使用,把门一关,东西再多再乱也不用担心!
3、改造大解锁



1.玄关部分增设拱形门设计,让人们一开门便感受到一股清新自然的异域情怀,搭配星型灯饰,点缀一些绿植装饰,为整个居室氛围增色不少。
2.墙面上清透的天空蓝将墙面格局进行划分,更具有视觉层次感。
3.左边设置开合鞋柜,右边利用墙面凹处设置收纳柜,充分利用每一处空间。

4.由于门厅很小,选择超薄鞋柜可以在满足换鞋功能的同时占据最小的空间。镜柜也是非常实用的收纳利器,一物两用,既能当镜子使用,解决平时出门前整理服装的高频需求,镜面背后又能完成收纳事宜。悄悄告诉你们,电表箱也藏在镜柜里哦,再也不需要只是好看却不实用的电表箱画啦!


原本的户型,无处设置餐厅,利用进门长过道的特点,在厨房旁边增设折叠餐桌。

折叠餐桌打开后可以满足多人同时用餐,开着暖色灯光,铺着业主亲手缝制的桌布,非常温馨。


空间有限的厨房,内部所承载的功能以及收纳空间确实巨大的:烤箱、整箱、洗衣机、冰箱全部严丝合缝的放在其中,除此之外,各种抽屉拉篮也是将空间利用到极致。

大面高柜是厨房的主要储备区域,由于电器后面的墙被砸掉一部分,使得内嵌电器可以嵌入墙内一部分,因此柜体偏薄,减少了对于厨房空间的占据,也保证了过道尺寸的正常通行。
烤箱两边的高拉篮将各种干粮与调料有序排列,任何食材在需要的时候都可以在最快的时间内找到。

遇到燃气管不好隐藏怎么办?买来好看的装饰绳缠绕上就可以解决!
墙面的空间也不要浪费,来放置女主常用的海量烹饪工具是非常方便的。

如果家里还有电器放不下怎么办?尽管往墙上放吧!
各种置物架可以根据不同的深度来放置各种料理机、微波炉以及最常用的粮食,将厨房空间利用率提升到最高!另外,洞洞板已经是被大家所熟知的收纳神器了,无论是各种瓶瓶罐罐还是大小挂件,可以根据使用率挂在触手可及的地方,非常方便!


1.卫生间虽然只有2平米,但是将原本的暖气拆除后淋浴间内的空间又得到了进一步释放,三联推拉门的形式相比平开门,在使用上会方便很多。
2.干区部分采用防水乳胶漆,用不同材质去表达空间层次;
3.壁挂洗衣机挂于马桶上方,节省了更多空间。
4.水盆,智能马桶,壁挂洗衣机被紧凑的安置在1平米的空间内,空间利用率100%!


原来的次卧改造成为客厅。这个空间未来也可能过渡为儿童房。
原本被用来放置暖气的地方用定制家具补齐,因此又GET到了一个隐形储物区。

值得一提的是,次卧原本是个刀把结构,改造后被分隔开,作为衣帽间使用。

打开衣帽间,里面是井然有序的置物架紧密排列,经过合理计算后一分空间都没有浪费,是一个强力的储物空间!


主卧的氛围区分于客户的清新气质,奶咖色营造的是稳重温馨的氛围,软包的双人床是忙碌一天的屋主最期待的归宿之地。

床头隔板的投影仪体量轻盈,放置于一个小小的隔板上就可以享受不错的观影体验。

阳光透过百叶窗,带有层次的光线洒在地面;墙面上的分隔置物架珍藏着女主人最喜欢的小饰品。
4、兔师傅改造心得

1.衣帽间的设置,不仅成功化解原本次卧“刀把结构”的户型缺陷,让次卧户型回归方正。最重要的是,收纳空间得到极大的改善。衣帽间的增设减轻了卧室的储物压力,女主人有练瑜伽的习惯,因为保留适当的空间对于主卧来说是非常重要的!
2.厨房的收纳有很强的借鉴意义,厨房在经过设计师严密计算后,设计了U型橱柜,无论是从动态流线还是储物率都得到了加强,秘诀就在于将原结构墙体敲薄,刚好可以放入嵌入式电器以及大冰箱。
本文设计素材由“末那识空间设计”提供
版权声明
本文为万家装修网编辑原创,版权归万家装修网所有。文章仅代表编辑本人观点,不代表万家装修网立场。未经万家装修网许可,不得以任何形式转载或发布。
合作:0554-5359879
营销:18154006436

安徽酷讯网络科技有限公司
合作:0554-5359879营销:18154006436
客服QQ:2282437452邮箱:2282437452@qq.com
公司地址:公司地址请联系管理员在后台更新完善
Copyright © 2026安徽酷讯网络科技有限公司
手机版